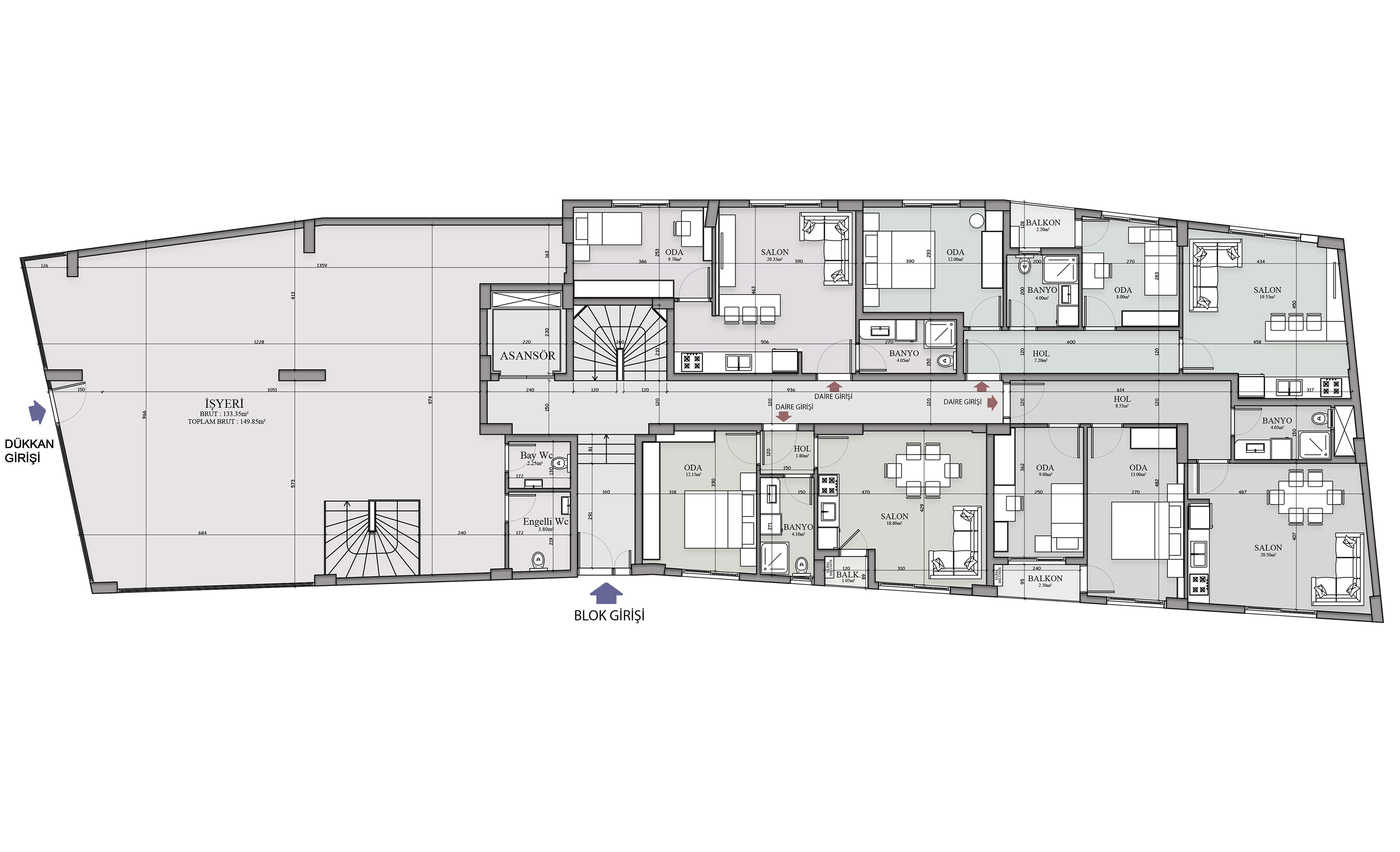
Fonksiyon: Konut           Proje Kapsamı: Konsept          Konum: Bayraklı / İzmir            Yıl: 2022 ​​​​​​​  
İzmir Bayraklı'da bulunan bu bina, modern mimari unsurlar ile klasik detayların birleşimini sergileyen bir yapıya sahiptir. Cephe tasarımında, yatay çizgiler ve sade geometrik formlar ön plandadır. Bina, koyu ve açık renklerin dengeli kullanımı ile estetik bir görünüm kazanmıştır. Üst katlardaki geniş pencereler ve balkonlar, doğal ışığın iç mekanlara maksimum seviyede girmesini sağlarken, aynı zamanda bina sakinlerine dış mekanla etkileşim imkanı sunar. Zemin katta yer alan geniş cam yüzeyler, ticari alanlar için ideal bir vitrin oluşturarak, binanın çevresiyle olan ilişkisini güçlendirir. Yapının yüksek katlı bölümü, sağlam bir dikey vurgu yaratırken, yatay uzanan bölüm çevreyle uyum içinde alçak bir profil sergiler. Çevre düzenlemesi ile birlikte binanın estetik çekiciliği ve işlevselliği artırılmış, modern yaşamın ihtiyaçlarını karşılayan bir yaşam alanı sunulmuştur.
Back to Top